Rodinný dům na prodej, ID: 9752

Strážnice na Moravě, Strážnice, okres Hodonín, Jihomoravský kraj

8 699 000,- Kč

Virtuální prohlídka
Odkaz na virtuální prohlídku : https://my.matterport.com/show/?m=yGFk8McXLXY
Protože byly Vámi zablokovány cookies, nemůžeme Vám zde přímo zobrazit virtuální prohlídku.
Změnu nastavení cookies můžete provést zde : O cookies
 

O nemovitosti ID 9752

  • Druh: Rodinný dům
  • Katastrální území: Strážnice na Moravě
  • Obec/Město: Strážnice
  • Okres: Hodonín
  • Kraj: Jihomoravský kraj
  • Cena: 8 699 000,- Kč
  • Exkluzivita: ano
  • ENB: B
  • Počet pokojů: 5 a více
  • Stav: Novostavba
  • Stavba: Cihlová
  • Plocha pozemku: 295 m²
  • Typ domu: Patrový
  • Parkování: ano
  • Užitná plocha: 132 m²

Popis nemovitosti

Prodej plně zkolaudované novostavby rodinného domu 5+kk, řadová zástavba, ulice Nová Písečnice, město Strážnice, parkování pro 2 os. automobily, vlastní oplocená zahrada, obývací pokoj s přímým výstupem do zahrady, v domě rekuperace, vytápění plynovým kondenzačním kotlem, na střeše vlastní FVE pro dohřev teplé vody, okna plastová 3-skla, zvuková izolace o 40% vyšší než stanovuje norma (certifikát), příjezd po nové asfaltové silnici, zahrada je přístupná i brankou ze zadní strany pozemku. Cena nezahrnuje : vnitřní podlahové krytiny, kuchyňskou linku, vnitřní dveře a obložky, stropní svítidla. Volné ihned.

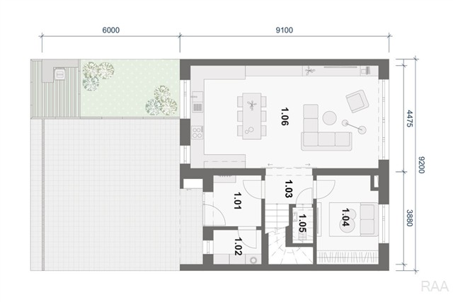
půdorys 1.NP (přízemí) půdorys 1.NP (přízemí)
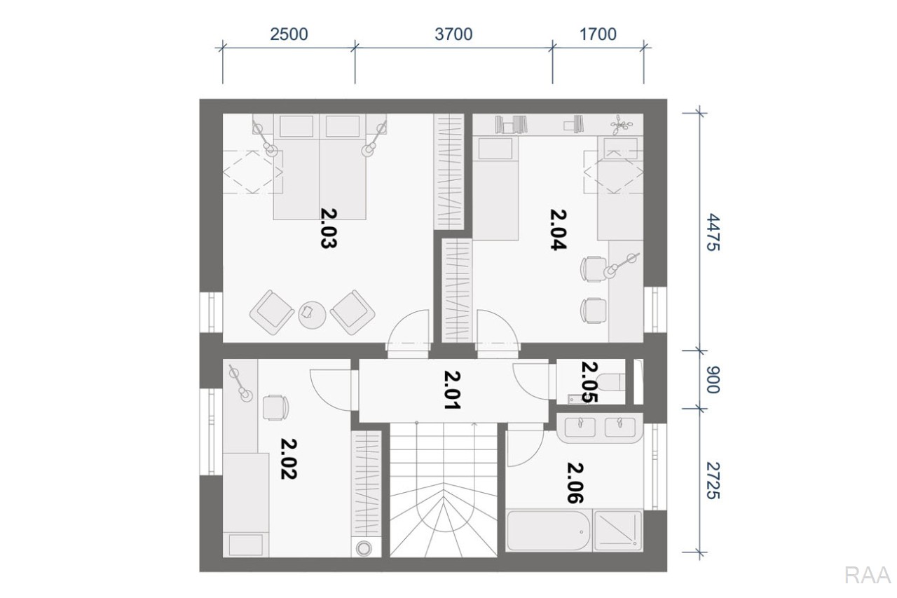
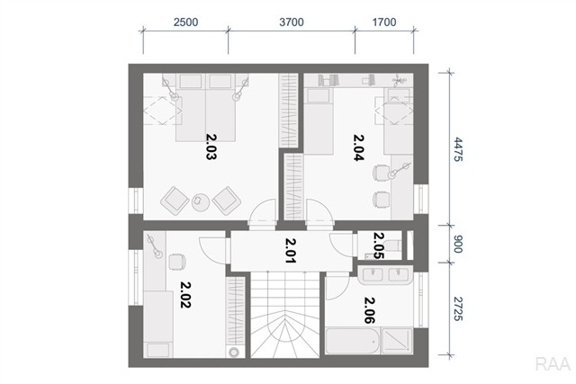
půdorys 2.NP (patro) půdorys 2.NP (patro)
půdorys 3.NP (půdní prostor) půdorys 3.NP (půdní prostor)