Rodinný dům na prodej, ID: 9747

Plumlov, Plumlov, okres Prostějov, Olomoucký kraj

7 995 000,- Kč

O nemovitosti ID 9747

  • Druh: Rodinný dům
  • Katastrální území: Plumlov
  • Obec/Město: Plumlov
  • Okres: Prostějov
  • Kraj: Olomoucký kraj
  • Cena: 7 995 000,- Kč
  • Exkluzivita: ano
  • ENB: G
  • Počet pokojů: 3
  • Stav: Dobrý
  • Stavba: Cihlová
  • Sklep: ano
  • Plocha pozemku: 1035 m²
  • Garáž: ano
  • Typ domu: Přízemní
  • Parkování: ano
  • Užitná plocha: 175 m²

Popis nemovitosti

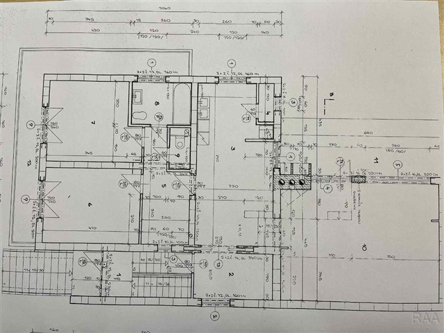
Nabídka prodeje rodinného domu s dispozicí 3+1 s příslušenstvím, garáží a pozemky o celkové výměře 1 035 m² v obci Plumlov. Dům vyniká svou výhodnou polohou v klidné ulici s výhledem na Prostějov a Plumlovskou přehradu. Jedná se o samostatně stojící, podsklepený, jednopodlažní dům s plochou střechou. Co dům nabízí: Dispozice - 1.PP – schodiště 6 m², chodba 11 m², garáž 19,4 m², dílna 10 m², prádelna 4,6 m², wc 1,5 m², sklad 7 m² a kotelna 11 m²; 1.NP – zádveří se schodištěm 6 m², předsíň 6 m², kuchyň 22 m², obývací pokoj 30 m², chodba 8 m², pokoj 13 m², ložnice 13,5 m², koupelna 5,1 m², WC 1,3 m² a spíž 1 m². Z obývacího pokoje můžeme vstoupit na terasu 16,6 m², která vybízí k posezení. Za domem se nachází menší stavba kůlny dřevěné konstrukce. Dům je v dobrém stavu, ihned obyvatelný a je ideální jak pro bydlení, tak i pro rekeaci. Dům je napojený na veškeré inženýrské sítě, vytápění je řešeno pomocí plynového kotle, je zde možnost i lokálního vytápění krbem v obývacím pokoji. Svislé konstrukce jsou zděné z tvárnic siporex. Stropy jsou keramické a betonové, střecha plochá krytá plechovou krytinou, okna dřevěná Euro, v pokojích parkety, ohřev TUV zajišťuje plynový bojler. Na zahradě se nachází ovocné dřeviny. Tento dům je ideální volbou pro ty, kteří hledají klidné bydlení se vzrostlou zahradou a s rychlou dostupností do Prostějova. Veškerá občanská vybavenost v místě. Se zajištěním nejvýhodnějšího financování Vám rádi pomůžeme. Veškeré uvedené údaje jsou pouze informativní.